Un progetto per il recupero delle ex Scuole di Cirano
Pubblicato da:
- Araberara [1]
Data pubblicazione:
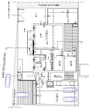
Il Consiglio Comunale di Gandino dello scorso 23 giugno ha approvato, fra gli altri punti all’ordine del giorno, la "Sdemanializzazione del compendio immobiliare dell’ex edificio scolastico di Cirano e concessione dello stesso in comodato d’uso gratuito all’organizzazione di volontariato ‘Gruppo Ge.Di. Genitori Disabili’. Il "burocratese" necessario per le pratiche comunali cela una decisione importante e di grande spessore. L’Amministrazione Comunale di Gandino ha infatti deciso di aderire alla proposta del Gruppo Genitori Disabili per la realizzazione nel vecchio plesso scolastico di via Sotto gli Orti di alcune residenze protette (piccoli appartamenti) per ragazzi o adulti disabili che possano sostenere una vita autonoma, pur assistiti da una famiglia "di sostegno" che vivrà nello stabile stesso.
Il progetto prevede anche e soprattutto la ristrutturazione del piano terra delle scuole (che resterà di uso pubblico) e nel quale saranno ricavati gli spazi necessari all’ambulatorio medico e alla sala civica della frazione.
Il Comune non ha venduto l’immobile, ma lo ha ceduto in comodato d’uso gratuito per 50 anni.
Il Gruppo Ge.Di. (che opera da oltre 20 anni in Valgandino e nella Media Valseriana. Ne fanno parte 20 famiglie con ragazzi disabili) si farà carico dei costi di ristrutturazione (grazie a contributi appositi stanziati da ASL e Fondazione della Comunità Bergamasca onlus).
Da alcuni anni il gruppo Ge.Di. cura direttamente le pratiche di interdizione ragazzi disabili, presentandole direttamente al Presidente del Tribunale (senza dunque ricorrere ad un avvocato, evitando spese ad ogni famiglia per 3-4/milioni delle vecchie lire).
Nel 2003 il gruppo ha ultimato la ristrutturazione della cascina «Roerò», alle pendici del monte Farno (non lontano dal Santuario della Madonna d’Erbia a Casnigo), ottenuta in comodato d’uso e in seguito utilizzata come punto di incontro per i disabili e le loro famiglie.
Nel 2004 è stata avviata un’attività di tempo libero con un "Progetto di avvicinamento al mondo agreste" per gruppo di 8/10 ragazzi disabili che consiste nell’accudire gli animali (asini e cavalli) e nella coltivazione di ortaggi in serra, presso la Cascina Roerò. Lo scorso dicembre è stato acquistato un pulmino attrezzato, grazie al contributo della Fondazione della Comunità Bergamasca onlus e di altri enti e privati della Valgandino.
A seguito della decisione del Consiglio Comunale (comunque condivisa in via preliminare anche dalla Consulta di Cirano) c’è stato in paese qualche malumore per la nuova destinazione d’uso delle scuole.
Il Sindaco Gustavo Maccari sgombra il campo in maniera decisa: "La ristrutturazione consente di raggiungere un risultato importante per la frazione (che da sempre ha la necessità di godere di spazi pubblici adeguati) ma è senza dubbio un’occasione concreta per dimostrare quella solidarietà e quella condivisione sociale di cui spesso si parla. I ragazzi che troveranno a Cirano una struttura protetta e familiare sono figli delle nostre famiglie, non sono persone strane o diverse. L’Amministrazione crede con entusiasmo a questa realizzazione ed è onorata di poter assecondare gli sforzi di un’associazione come il gruppo Ge.Di che dimostra nei fatti i propri intenti e i propri scopi".


